COMPROMETIDOS CON LA INNOVACIÓN
En Proyme investigamos y buscamos la mejora constante, trabajando con
las técnicas más punteras y aportando nuestro expertise al sector.
Obra complejo residencial Neinor «Saler Homes»
DITEX
FACHADA DE PANELES METÁLICOS: CURVAS
El mayor reto de esta obra ha sido la ejecución de la fachada de paneles metálicos por su complejidad y porque representa la cara más visible del edificio y su seña de identidad.
El diseño con gran parte de la fachada con curvatura lo hacía más complejo. Se realizó una prueba de peto metálico que finalmente se descartó por el muro de ladrillo tradicional, ya que proporcionaba un mejor acabado interior.
De los 2 tipos de paneles utilizados, en uno de ellos, por la curvatura se tuvo que diseñar una forma de sujeción diferente a la habitual, lo cual requirió la certificación especial DITEX.
Prueba de peto metálico finalmente descartado
Despiece inicial del antepecho que incluía curvas y rectas en el mismo panel
Despiece de los paneles de fachada grises
Muestra inicial de paneles curvos
FACHADA DE PANELES METÁLICOS: SISTEMA
Para la fachada, el requisito más condicionante era mantener las líneas horizontales sin escalones y, al mismo tiempo, mantener las alturas habitables de la vivienda.
La carpintería de las ventanas, y su aislamiento y sellado, fue minuciosamente estudiado para funcionar en todos los tipos de huecos.
Croquis de trabajo del sistema
Detalle del diseño del premarco de las ventanas
Prueba del diseño del premarco de las ventanas
Impermeabilización de huecos
Replanteo de alturas entre plantas
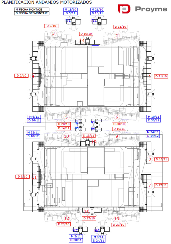
FACHADA DE PANELES METÁLICOS: ANDAMIOS
La gran superficie de fachada y el plazo para su montaje únicamente permitían la utilización de un tipo de andamio, por lo que se utilizaron muchas plataformas elevadoras simultáneamente pero en un tiempo más corto.
Los andamios motorizados rodeaban completamente las torres, y aún así se necesitó colocar una segunda fase de andamios para llegar a algunas zonas.
Debido a la distancia de dos alturas entre balcón y balcón, para el frente y techo de los balcones se han necesitado andamios tubulares, en algunos casos unidos mediante pasarelas.
En algún momento puntual también ha sido necesario trabajar descolgado en la fachada.
Plano de planificación de andamios
FACHADA DE PANELES METÁLICOS: MONTAJE
Antes del montaje se realizó un escaneo 3D, llamado nube de puntos, que permitió el trazado de los planos de fachada teniendo en cuenta las irregularidades propias de la obra.
Dentro de la obra se montaron 2 talleres de fabricación de paneles composite in situ, llegando a tener en obra 17 operarios de fachada.
Durante el montaje hubo que resolver detalles especiales de anclaje por la singularidad de la fachada.
Prolongación del anclaje especial
Resultado del escaneo 3D para la definición de los plomos de fachada
Detalle de anclajes y montantes del sistema colgado